Свердловская обл, г Верхняя Пышма, ул Машиностроителей, д 13 3436836800
г Екатеринбург, ул Академика Шварца, д 14 +73436836868

Продажа 3-к.квартира, 101 м², 6/16 эт. ID: J897

Екатеринбург, Чкаловский, Автовокзал, улица 8 Марта, д.173

Чкаловская Север-Юг 1646 мин.
Комнаты 3
Площадь 101 м²
Жилая 59.3 м²
Кухня 15.2 м²
Этаж 6 из 16
Сдача 2008 г.
19 950 000
197 524 /м²
Рассчитать ипотеку
Карелин Дмитрий Павлович

Карелин Дмитрий Павлович
Директор

+7(922)201-2044

2909041@mail.ru
QR
Ссылка на объект

Описание

Центр Автовокзала, квартира 100.2 м2 в КИРПИЧНОМ доме на 6 из 16 этаже в отличном состоянии, рядом с метро.


Дом:



  • Год постройки 2008

  • 6 из 16 этаж

  • Материал стен – КИРПИЧ

  • УК «Созвездие»

  • Спальни - окна во двор


Параметры квартиры:



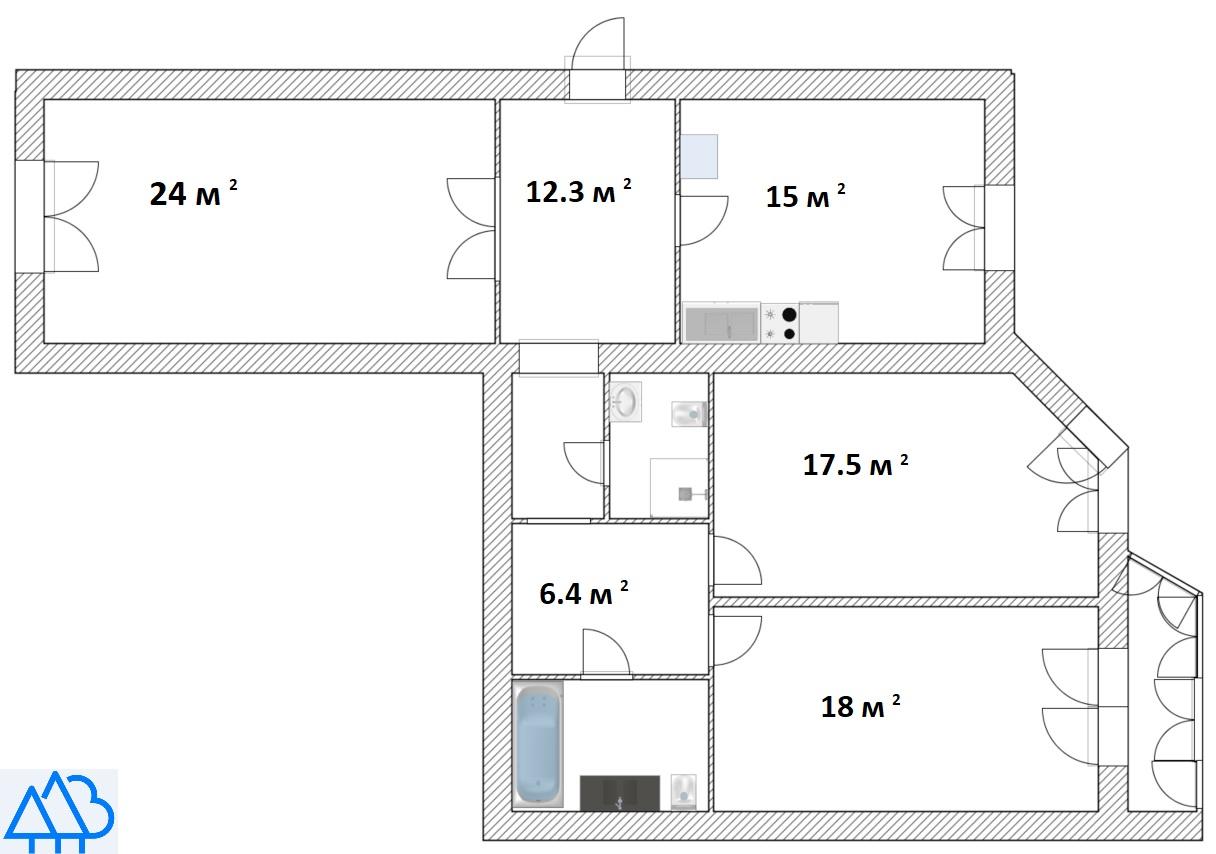
  • общая площадь – 100.2 м2

  • кухня – 15 м2

  • гостиная – 24 м2.

  • Спальня 17.5 м2

  • Спальня 18 м2

  • Санузлов 2-а: ванная + душ

  • Лоджия - застеклена.


Состояние:



  • Отличное

  • окна пластиковые

  • санузел – кафель

  • ванна (акрил) с гидромассажем, душевая кабина

  • Санфаянс IDEAL STANDARD

  • Краны Grohe

  • стены выравнены

  • пол – паркет (лаги + 2-а слоя фанеры)

  • входная дверь –сейф

  • кухня – техника BOSCH


Инфраструктура: Большой тихий закрытый двор с детской площадкой. Хорошая большая парковка. Рядом: метро ст. Чкаловская, ТЦ «Мегаполис», недалеко от дома находится детский сад № 493, 497 ,33, Гимназия 120, Французская гимназия, Школа № 102, фитнес клуб «F2», различные сетевые магазины, аптеки, кафе, отличное транспортное сообщение.


Возможны любые виды расчета.


Звоните и записывайтесь на просмотр!

Подробнее

Характеристики

  • Тип недвижимости Квартиры
  • Населенный пункт Екатеринбург
  • Район Чкаловский
  • Микрорайон Автовокзал
  • Адрес улица 8 Марта, д.173
  • Станция метро Чкаловская ( 1646 мин.)
  • Количество комнат 3
  • Год постройки дома 2008 г.
  • Общая площадь 101 м²
  • Жилая площадь 59.3 м²
  • Площадь кухни 15.2 м²
  • Этаж 6
  • Этажей в доме 16
  • Тип санузла Совмещенный
  • Наличие телефона нет
  • Наличие интернета да
  • Наличие мебели да
  • Мусоропровод нет
  • Вид из окон во двор и на улицу
  • Высота потолков в метрах 2.7 м.
  • Тип дома кирпичный

Задать вопрос


Мы используем файлы cookie, чтобы обеспечить вам наилучший доступ к нашему веб-сайту

Скопировано