Свердловская обл, г Верхняя Пышма, ул Машиностроителей, д 13 3436836800
г Екатеринбург, ул Академика Шварца, д 14 +73436836868

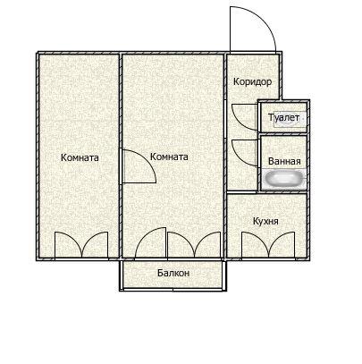
Двухкомнатная квартира ID: J911

Екатеринбург, Орджоникидзевский, Уралмаш, улица 40-летия Октября, д.63

Проспект Космонавтов Север-Юг 1603 мин.
Комнаты 2
Площадь 41.8 м²
Кухня 6 м²
Этаж 2 из 4
Сдача 1959 г.
Материал кирпичный

Описание

Двухкомнатная квартира в самом центре Уралмаша в 15 мин от метро.

Характеристики квартиры:

Общая площадь - 41,8м2
Комната - 13м2
Комната - 16м2
Кухня - 6м2
Санузел - раздельный.

Хороший ремонт позволяет на первое время заехать и жить новым собственникам, без дополнительных затрат.
Из ремонта в комнатах: натяжные потолки, качественные обои, пол - ламинат. Окна пластиковые, балкон застеклен.

В прошлом году (2024) был капитальный ремонт: замена стояков и труб, замена крыши и реставрация фасада дома.
Дом кирпичный, межкомнатные перегородки тоже из кирпича. Это создает шумоизоляционный эффект и делает квартиру теплой.

Комфортный второй этаж позволяет добираться до квартиры как мамам с детьми, так и пожилым людям.
Перед домом имеется личное парковочное место.

Инфраструктура:

Великолепное расположение дома позволяет легко и быстро добраться в любую точку Екатеринбурга.
Остановка общественного транспорта (автобус, троллейбус) через дорогу от дома, маршруты: 29, 38, 30, 80, 73.
В двух минутах ходьбы, на ул. Победы, трамвайная остановка , маршруты: 24, 8.
До метро ст. Проспект Космонавтов 5 минут на машине или же всего 15 минут пешком.

Во дворе расположен детский сад №154, еще 5 других в шаговой доступности.
В соседнем квартале общеобразовательная школа № 81.
В соседнем дворе детская больница №15, медицинская лаборатория Ситилаб и стоматологическая клиника Гарант.

Все супермаркеты рядом у дома (Монетка, Пятерочка, Мясорубка, Магнит, Кировский), хозяйственные магазины, аптеки. В самом доме расположен пункт выдачи Вайлдбериз, остальные в шаговой доступности.

Приглашаем Вас на просмотр квартиры, с удовольствием ответим на все вопросы!

Рассмотрим все формы оплаты:

- ипотека
- материнский сертификат
- другие сертификаты

Звоните/пишите и записывайтесь на просмотр.
Подробнее

Характеристики

  • Тип недвижимости Квартиры
  • Населенный пункт Екатеринбург
  • Район Орджоникидзевский
  • Микрорайон Уралмаш
  • Адрес улица 40-летия Октября, д.63
  • Станция метро Проспект Космонавтов ( 1603 мин.)
  • Количество комнат 2
  • Год постройки дома 1959 г.
  • Общая площадь 41.8 м²
  • Площадь кухни 6 м²
  • Этаж 2
  • Этажей в доме 4
  • Тип санузла Раздельный
  • Тип балкона балкон
  • Ремонт частичный ремонт
  • Состояние объекта нормальное
  • Наличие интернета да
  • Мусоропровод нет
  • Вид из окон на улицу
  • Тип дома кирпичный

Задать вопрос



Вас также может заинтересовать:

25
2-к.квартира, 59 м², 9/10 эт.
Екатеринбург, улица Таватуйская, д.6
Железнодорожный
5 350 000
  • Общая площадь:59 м²
  • Жилая площадь:32 м²
  • Площадь кухни:9.7 м²
  • Этаж:9
13
1-к.квартира, 41 м², 17/26 эт.
Екатеринбург, улица Рощинская, д.21
Чкаловский, Автомобилист Чкаловский
Ботаническая
5 150 000
  • Общая площадь:41 м²
  • Жилая площадь:15 м²
  • Площадь кухни:11 м²
  • Этаж:17
16
4-к.квартира, 61.1 м², 3/5 эт.
Екатеринбург, улица Щербакова, д.141, к.а

4 249 000
  • Общая площадь:61.1 м²
  • Жилая площадь:45.7 м²
  • Площадь кухни:6 м²
  • Этаж:3

Мы используем файлы cookie, чтобы обеспечить вам наилучший доступ к нашему веб-сайту

Скопировано